Напольная кондитерская холодильная витрина Finist AIR DOUBLE AD-160-6-163
Напольная кондитерская холодильная витрина – оборудование, созданное для аккуратной демонстрации десертов и их стабильного охлаждения. Она устанавливается прямо на пол, формируя самостоятельный элемент торгового пространства и обеспечивая удобную подачу изделий, требующих определенного температурного режима.
Фасадные элементы витрины можно адаптировать под стиль любого помещения: поверхность окрашивается в выбранный оттенок по каталогу RAL или облицовывается МДФ-панелями, что помогает подчеркнуть фирменный дизайн и гармонично вписать оборудование в интерьер.
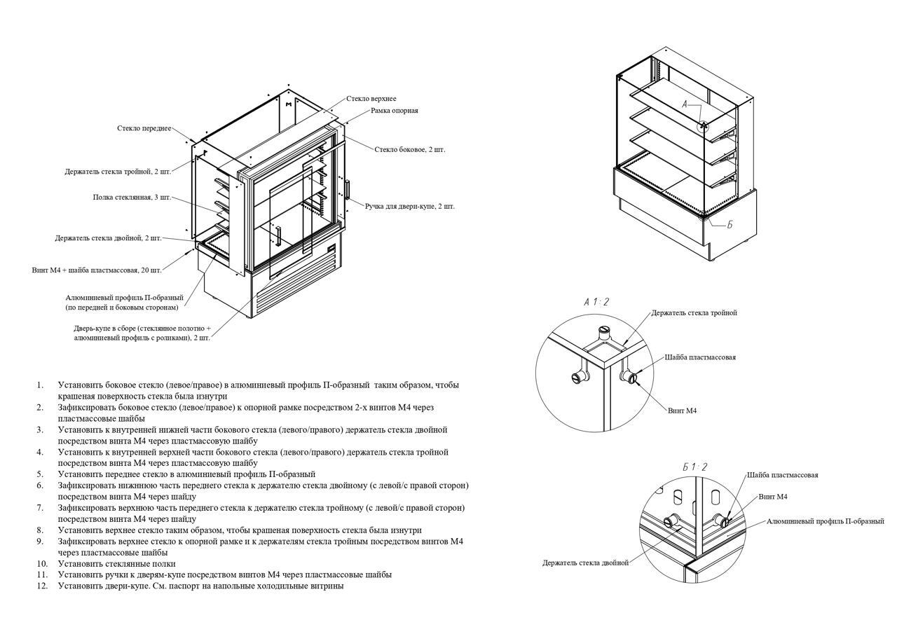
Доступ к выставленной продукции обеспечивается через раздвижные стеклянные двери. Внутренняя часть витрины рассчитана на размещение десертов на трех стеклянных полках и нижней площадке, что позволяет эффективно использовать пространство.
Благодаря обширной линейке размеров оборудование легко объединять в непрерывные кондитерские линии. Съемные боковые стеклянные панели и фасады дают возможность состыковывать несколько витрин вплотную, исключая пустоты и лишние перегородки.
При необходимости витрина может работать как автономная единица: в базовой комплектации она снабжена всеми боковыми стеклами и фасадными элементами.
Особенности:
- 3 полки из стекла;
- регулятор скорости вращения вентилятора охладителя воздуха;
- динамическое охлаждение;
- автоматическое оттаивание испарителя;
- рабочая температура – от +5 до +10 градусов.
